Ortsgemeinde Bongard
Ortsgemeinde Bongard

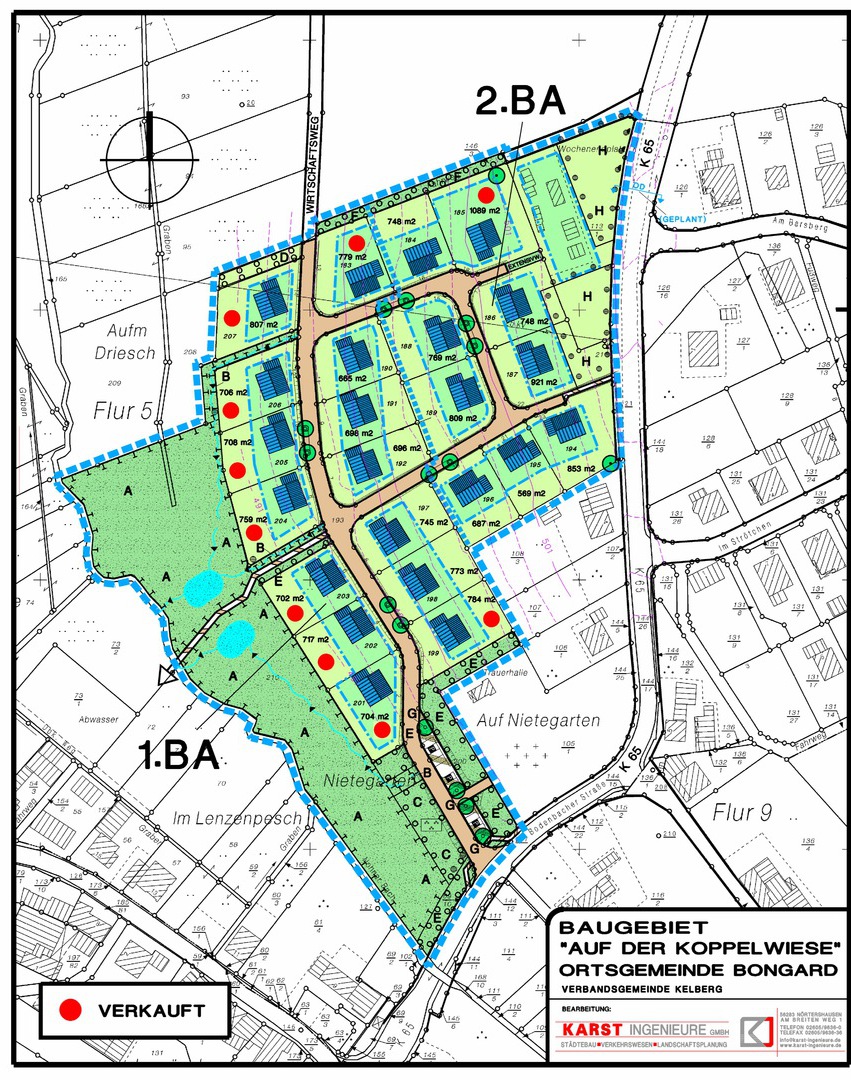
Baugebiet "Auf der Koppelwiese"

Das Neubaugebiet "Auf der Koppelwiese" in Bongard, in bester Sonnenlage, hat eine Gesamtfläche von ca. 3.3 ha. Es befindet sich im Nordosten der Ortslage von Bongard. Im Nordosten grenzt es unmittelbar an die K 65, im Südwesten bildet der Nohner Bach die natürliche Grenze.

23 Baugrundstücke liegen in der Planfläche, welche sich jedoch in zwei Bauabschnitte aufteilen. Hiervon sind im ersten Abschnitt 14 Grundstücke verfügbar. Mittelfristig kommen über den zweiten Bauabschnitt weitere 9 Grundstücke hinzu.

Grundstückspreise auf Anfrage

Bauabschnitt 1(B1) befindet sich innerhalb des blauumrahmten, linken Bereiches

Druckversion | Sitemap
© Ortsgemeinde Bongard

Erstellt mit IONOS MyWebsite.

E-Mail